|
|
ARCHITECTURE
The following is a selection of works made by Fernando Moran in his own studio in Argentina as well as in the U.S. in his role as Design Leader and Project Coordinator at
Design Builders & Remodeling, Inc. CT.
These were selected for its unique design characteristics and variety of styles, as well as to showcase his ability to use and combine different materials and construction systems.
SALTO HOSPITAL, ARGENTINA
QUIJOTE PUB, ARGENTINA
HOUSE IN CANDLEWOOD LAKE, CT
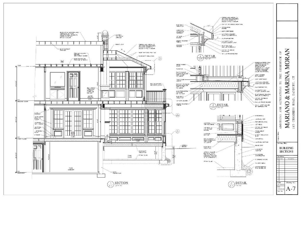
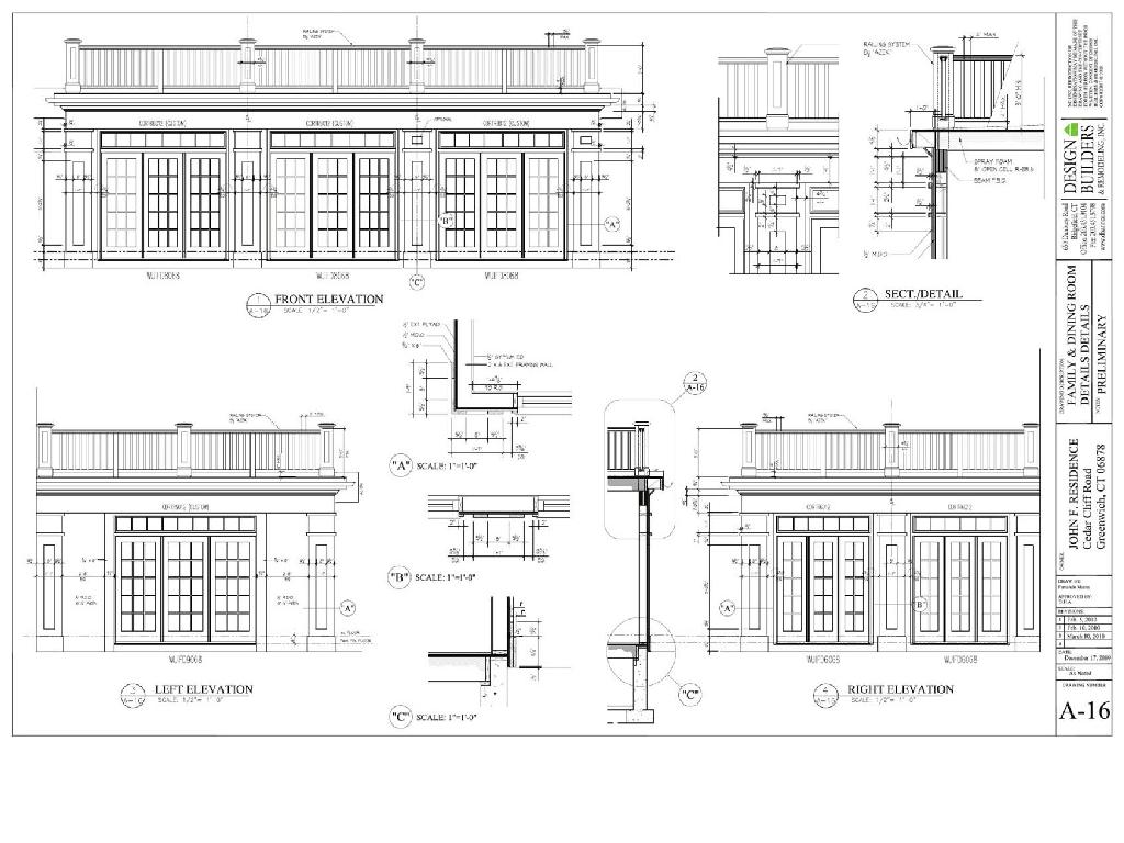
HOUSE IN GREENWICH, CT-#V-ST
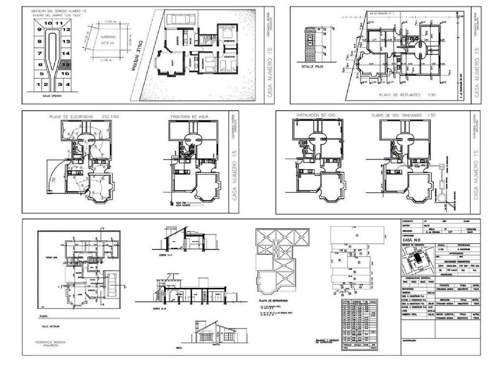
"LOS TILOS" COMPLEX, ARGENTINA
POOL HOUSE, NEW CANAAN, CT-USA
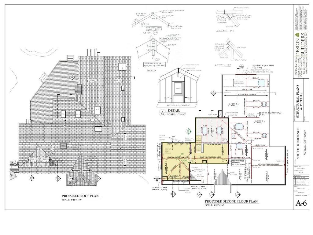
BIG TRANSFORMATION, WILTON, CT-USA
BEACH HOUSE, FAIRFIELD, CT- USA
CHOCOLATE ICE CREAM PARLOR, ARG.
GREENWICH GAMBREL, CT-USA
HOUSE IN GREENWICH, CT-#FG-USA
CONNECTICUT PRESS, CT-USA
HOUSE IN BROOKFIELD, CT-USA
SEPTEMBER 11, WASHINGTON, DC-USA
DESIGN DEVELOPMENT SKETCHES
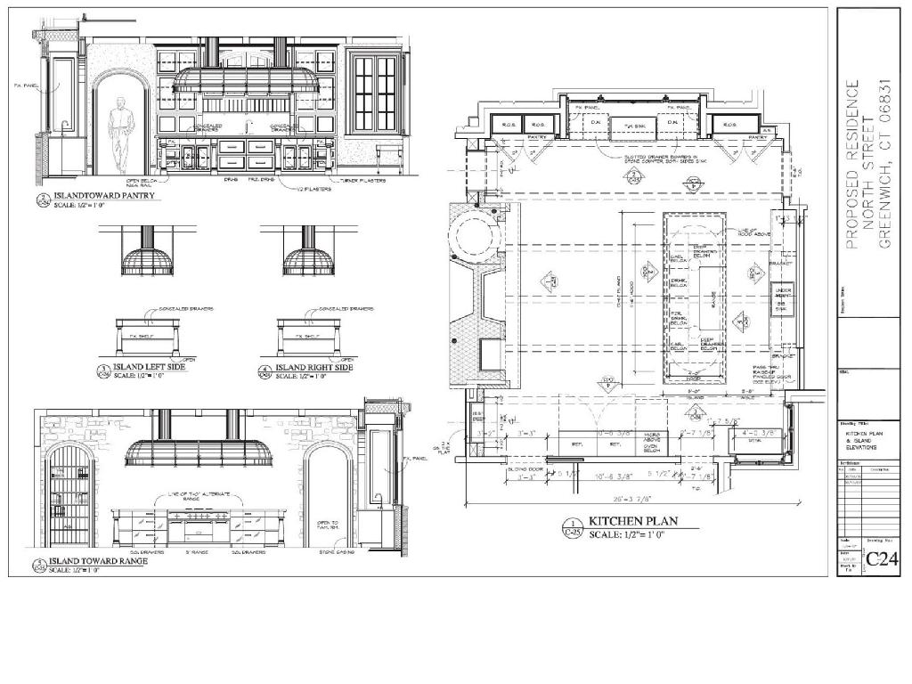
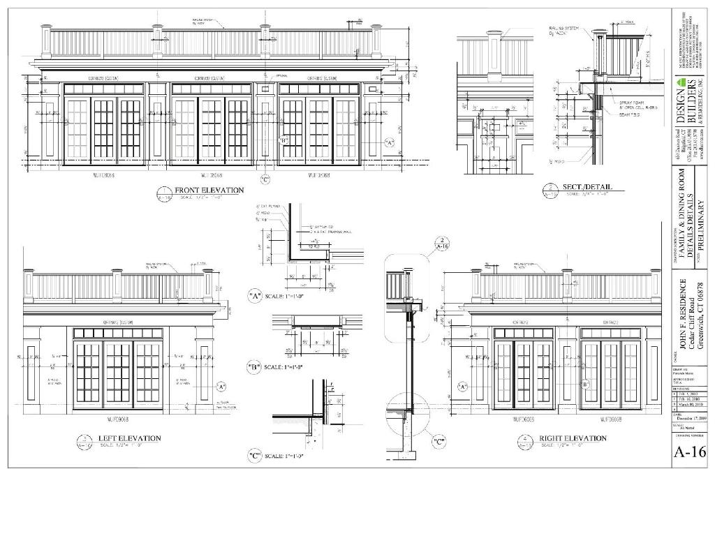
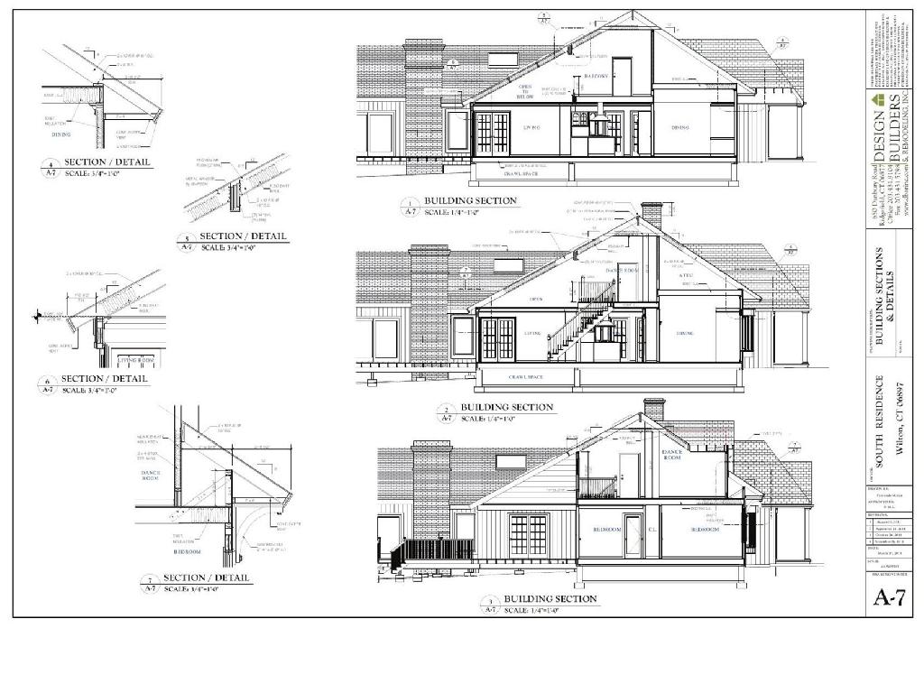
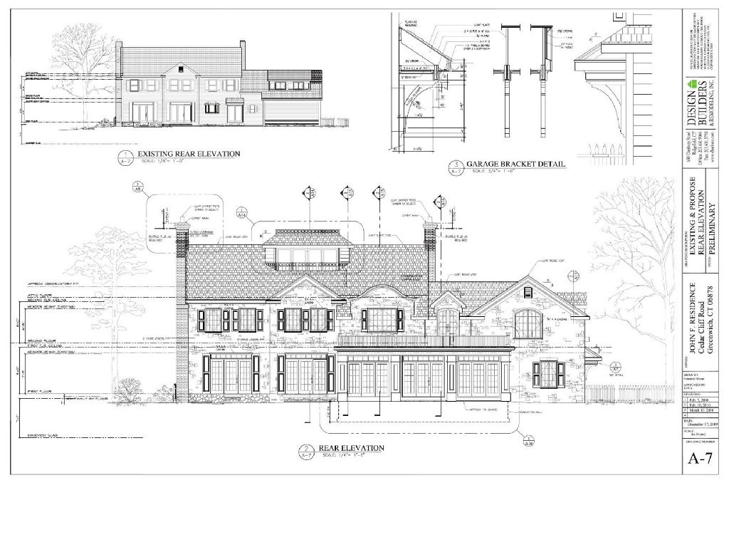
CONSTRUCTION DRAWINGS EXAMPLES
GREENWICH CRAFTMAN, CT-USA
CLAUDIA GYMNASIUM
GREENWICH-CRAFTMAN, CT-USA
SPANISH REVIVAL RENOVATION, ARG.
PROJECT 4
|